Wohnungen-Immobilien.ch

2.5 Zimmer Wohnung in 5619 Büttikon zu vermieten

Mieten
Kategorie
Wohnung
Zimmer
2.5 Zimmer
Zimmer
90m2
Merkmale
Haustiere erlaubt
Balkon
Maisonette / mehrstockig
Waschturm
Standort
5619 Büttikon, Kanton Aargau
Bruttomiete
CHF 1'760.- monatlich
Verfügbar ab
01.04.2026
Beschreibung
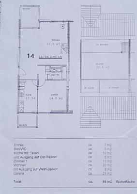
Traum-Dachwohnung mit Galerie und 2 Balkonen

Erleben Sie den Charme dieser einzigartigen Galerie-Dachgeschosswohnung in Büttikon, die sofort oder nach Vereinbarung zur Miete verfügbar ist.

Mit einer grosszügigen Wohnfläche von 90 Quadratmetern plus 2 Balkonen (1x Ost, 1x West) bietet diese 2.5 Zi-Wohnung ein offenes Wohnkonzept für Paare, die sich mit einem separatem Schlafzimmer (15m2) einen Rückzugsort wünschen. Die imposante Galerie mit 21m2 bietet einen fantastischen Ausblick auf das 32m2 lichtdurchflutete Wohnzimmer mit Schwedenofen und kann sowohl als Büro, als Atelier, oder in Kombination auch als Schlafraum genutzt werden.

Zwei eigene Einstellplätze in der Tiefgarage, mit elektrischem Tor für sfr 80,-/PP/Mt befinden sich direkt vor der Türe zur Garage.
Die Küche verfügt über die notwendigen Küchengeräte inklusive Geschirrspüler.

Das Bad mit WC hat eine offene, moderne Dusche und einen praktischen Handtuchtrocker.
Die Wohnung ist mit einer eigenen Wasch-Trockner-Maschine ausgestattet.

Ein Abstellraum im Keller mit 10m2 und ein zusätzlicher allgemein zugänglicher Waschkeller mit Trocknungsraum stehen ebenfalls zur Verfügung.

Diese Immobilie ist haustier- und kinderfreundlich, was sie ebenfalls zu einem idealen Zuhause für kleine Familien macht. Mit einem Mietpreis von 1500 CHF und zusätzlichen Nebenkosten von 260 CHF (plus Strom) ist diese Dachgeschosswohnung ein wahres Juwel in der begehrten Gegend von Büttikon.

Vereinbaren Sie noch heute einen Besichtigungstermin und sichern Sie sich mit dieser tollen Wohnung Ihr neues Zuhause!

Weitere Wohnungen und Immobilien im Umkreis 5619 Büttikon